德國工業(yè)4.0智造

  • 健康環(huán)保
  • 免費服務
  • 三年質保
  • 本地體驗
首頁 > 案例中心 > 歐式 > 歐陸風情

歐陸風情 2704

136㎡#三室兩廳兩衛(wèi)#歐式

案例介紹
內蒙古自治區(qū) - 烏蘭察布市 - 集寧區(qū) 警苑


                       

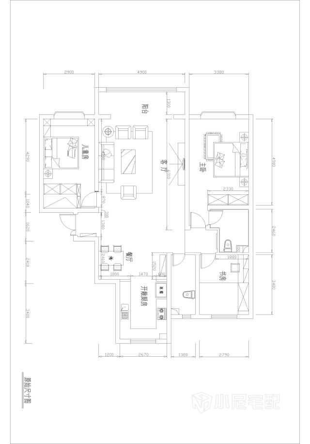
戶型圖

門廳
客廳
客廳
餐廳
臥室
臥室
次臥
衛(wèi)生間
廚房
1274
內蒙古自治區(qū)-烏蘭察布市
設計經(jīng)驗10 作品5
  • 中式
  • 混搭
  • 東南亞
  • 硬裝設計
  • 軟裝配飾設計

免費申請設計

設計師上門服務全程免費,禁止以任何形式收取費用。

請輸入驗證碼

驗證碼輸入錯誤